Modular OT & Clean Room Setup

Modular OT & Clean Room Setup

We deal in modular Operation Theatre/Clean room as per NABH & ISO guidelines. Our theory of designing every setup as per customer specification, easy to use & make them valuable on along run.

Our team can design, manufacture and install your certified cleanroom in as little as 6 weeks.

The modular cleanroom is optimized to create sterile environment inside the lab & OT for the growth of gametes or embryos.

Some Specialties of our Modular Lab & OT:

  • PPGI & PPGL PUF Panel
  • Hygiene Cladding
  • Hermetically Sealed Air Tight Doors
  • Antistatic Conductive Vinyl Flooring
  • AHU System
  • Static Pass Box
  • Scrub Station
  • Gas Supply Manifold System

Static Pass Box

Semi hermetically sealed PPGI Doors

Hermetically Sealed HPL Doors

Scrub Station

Modular OT

Modular OT

Modular OT

AHU System

AHU System

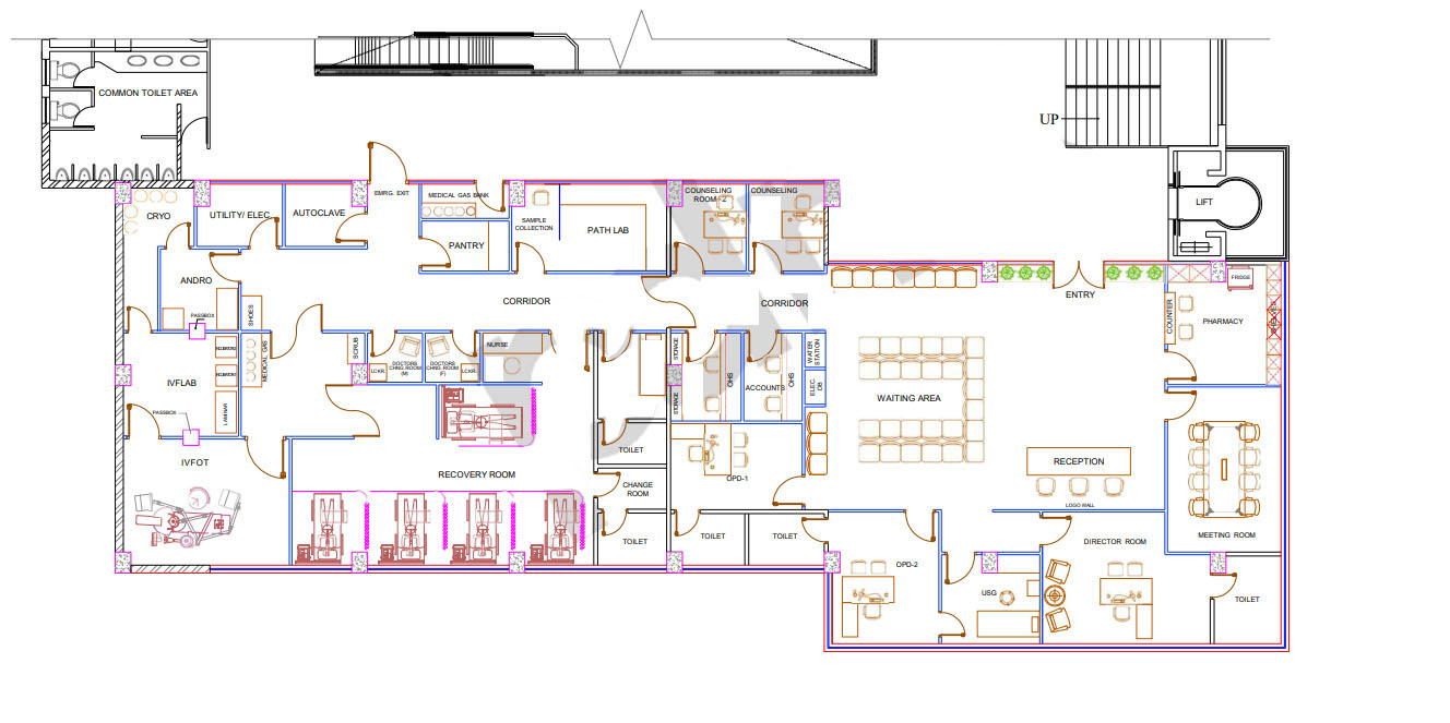
Sterile Area Layout

Complete Turn Key Project Layout

<

24x7 Support

Call Our Expert +91-8459066673